[두번째 주택은 다가구주택이다]

- 안성다가구주택
- Architect_하우징
- 위치_경기 안성시 일죽면 산전길 82-13
- 용도_다가구주택
- 면적_387㎡ [117평]
- 건축주_주식회사 일죽농원
- 설계/공사년도_2017년
- 총 소요기간 _약 32주
- 설계 / 시공_ All-TURNKEY
- 키워드_주택 첫작품
테라스형 하우스를 설계하거나 시공한 설계사나 감독관은 무척 힘든 작업이라고 한다. 거기에 맨위층에 Mass를 올려 놓았으니 더욱더 어려운 작업이었다. 또한 골조공사는 초겨울에 마쳤으니 얼마나 더 힘들었는지는 상상 그이상이다.
하지만 다음번에 도전할 기회가 한번더 생긴다면 물론 다른 스타일로 더욱더 업그레이드를 시켜야 할 것이다.
첫째는 건물의 외벽과 접하는 부분의 방수이다.
둘째는 시공상 계획을 잘세워야만 좋은 건축물이 된다. 그만큼 시공이 어렵다.
셋째는 제일 밑인 기초부에 대한 구조는 건축공간계획과 잘 협조되어야 한다.
넷째는 건물의 진입공간과 상호간의 프라이버시계획이 잘되어야 좋은 건축물이 된다.
무척 힘든 작업이었지만 그만큼 좋은 인상을 남겨준다.

한장면을 상상하면서 컨셉을 잡았지만 결코 쉬운접근은 아니었다. 판넬팀이 조금만 더 경험이 많았던 팀이었다면 물론 디테일이 더욱 좋았을텐데 그래도 원안에 가깝게 나왔다. 어떨땐 감독관이라는게 서글프기도 하고 외롭기만 한 직업인것 같았다. 하부는 원래 주차장으로 사용할려고 했는데 우리나라는 개별법들이 참으로 많은걸 느꼈다. 농지법과 건축법의 충돌이 잠시 있었다. 하부 석재와 상부 노출콘크리트 패널이다. 노출콘크리트 패널의 업체는 다양하지만 꼭 눈으로 확인하고 꼭 시공된 현장에 가서 보기를 원한다. 마감모서리가 틀리며 질감도 틀리며 타공된 면처리도 다르다. 꼭 눈으로 확인해야만 좋은 결과물을 얻을 수 있는것 같다. 원안은 외벽면 일부에 원목으로 치장했으면 더욱도 멋있었을텐데 공기가 늘어나면서 공사비도 늘어나서 마감을 위한 공사비충당을 위해서 시공하지 못했지만 디자이너 말고는 그걸 아는 사람이 없음이 참 아이러니하다. 많은 아쉬움을 남긴다.

이 돌이 거의 2천만원짜리이다. 장비뿌렉카를 거의 5개이상을 바꿨고, 공기도 5주이상 늘어나게한 바위였다. 포기하고도 싶었지만 바위가 없어지지 않으면 아래와 같은 건물은 지어지지 못했을 거다. 건축은 이래서 힘든가 보다.

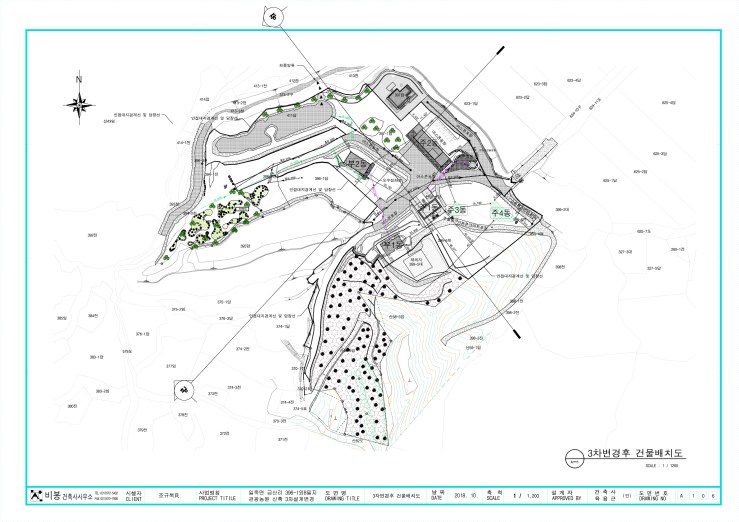
처음 디자인은 언덕위에 4층의 다가구가 계획되어져 있었다. 물론 산위에 주택이 들어섰다면 뒷편에 자리잡고 있던 안채는 가려지고 전망은 물론 자연이 훼손되었을거라 생각한다. 그래서 테라스형 하우스를 계획하였다. 전면 전망이야 훌륭했으며, 건물의 진입을 위해서라도 계단식 테라스하우스가 꼭 자리를 잡아야만 하는 대지조건이었다. 하지만 테라스형 하우스를 짓기 위해서는 많은 것을 생각해야만 한다.

앞으로 테라스형 하우스를 다시하게 된다면 건물주위로 꼭 드라이에어리어를 두도록 해야 한다. 처음에는 설계에 반영했는데 건물의 높이가 있어서 포기했는데 경사형식으로 또는 밀폐된 공간으로 공사비가 증가하더라도 꼭 건축주를 설득해서 진행해야 한다. 결로에 의한 습기와 방수시공에 대한 조그만한 하자도 용납하지 않는다.



상위법에 대한 허가진행을 할때 하위법에 대한 적용을 빨리하기위해서 의제처리라는게 있다. 물론 기간단축과 중복된 행정을 간소화 시키기 위해서 만들었을거다. 그런데 이게 한번 허가를 잘못내주면 다음에 변경할때는 애로사항이 발생한다. 모든것을 행정처에 맡기는 것보다는 건축주가 하나하나 알아가던지 아님 그것을 해결할만한 감독관이 꼭 필요했던 것 같다. 많은 이야기를 다 할수는 없지만 쉽지는 않았다.
이 다가구주택이 힘들게 했던 두번째 조건은 건축주가 나무를 너무나 사랑하신다. 정말로 웃긴 이야기이지만 두나무사이에 건물을 집어넣었다는 표현이 맞을거다. 혹시나 해서 경계측량을 3번정도는 확인하고 또 확인했던것 같다. 정말이지 요즘 태풍과 같이 큰규모가 왔더라면 후덜덜 하다. 감사하게 생각한다. 그러한 조건하에서 공사를 진행했던 건 아마도 도전적인 성품때문인것도 있을거고 그걸 묵묵히 따라준 작업작들의 노고때문이기도 하다.











